金沢市南四十万一丁目 戸建 物件詳細
金沢市南四十万一丁目 戸建
追加
資料印刷
2025年11月リフォーム済物件! 山側環状線アクセス良好!四十万駅まで徒歩約9分、ウエルシア金沢四十万店まで徒歩約8分。車で5分程のエリアには飲食店や買物施設などが揃い、生活施設が充実しています。
2025年11月リフォーム済物件! 山側環状線アクセス良好!四十万駅まで徒歩約9分、ウエルシア金沢四十万店まで徒歩約8分。車で5分程のエリアには飲食店や買物施設などが揃い、生活施設が充実しています。
| 所在地 | 石川県金沢市南四十万1丁目 | ||
|---|---|---|---|
| 交通 | 北陸鉄道石川線/四十万駅 徒歩7分 北陸鉄道石川線/陽羽里駅 徒歩10分 |
||
| 価格 | 2,450万円 | ||
| その他費用 | - | ||
| その他一時金 | - | ||
| 私道負担・道路 | - | ||
| 土地面積 | 202.05㎡(61.12坪)(公簿) | ||
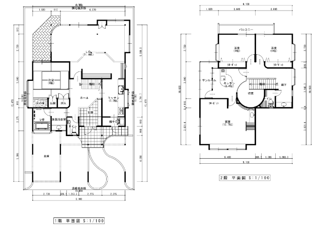
| 建物面積 | 158.32m2 | ||
| 間取 | 4LDK | ||
|
建ぺい率・
容積率
|
60% ・ 200% | ||
| 築年月 | 1990年11月 | ||
| 階数 | 2階建て | ||
| 物件種目 | 戸建 | ||





























| 引渡条件 | 現況渡し | ||||
|---|---|---|---|---|---|
| 引渡時期 | 即可 | ||||
| 借地期間 | - | ||||
| 用途地域1 | 第二種住居地域 | 用途地域2 | - | 地目 | 宅地 |
| 土地の権利形態 | 所有権 | 構造・工法 | 木造 | 販売戸数 | 1戸 |
| 都市計画 | 市街化区域 | 国土法届出 | 不要 | 現況 | 空室(入居歴有) |
| 敷地延長面積 | - | 建築確認番号 | 金建第H02-1328 | ||
| リフォーム |
2025年11月 一部 キッチン、浴室、トイレ、洗面所、床(フローリング等) |
||||
| リノベーション | - | ||||
| 駐車場 | あり 無料 | ||||
| 設備・こだわり |
|
||||
| その他特記事項 |
セットバック:不要 地勢:平坦 接道:北 公道 幅員:16m 間口:11.2m 位置指定なし 接道状況:一方 舗装あり |
||||
| 備考 | 室内はリフォーム済で、初めてのご入居でも安心してお住まいいただける清潔感のある住まいです。また開放感のある4LDK+DK(2階)の間取り。 四十万駅まで徒歩約9分の好立地。通勤・通学に便利な環境。徒歩圏内にはウエルシア金沢四十万店があり、日々の買物もスムーズ。また車で5分ほどのエリアには飲食店やホームセンター、家電量販店などが揃い、生活施設が充実しています。自然も近く、落ち着いた住環境で快適にお過ごしいただけます。 | ||||
| 問合せNO | 8425 | 取扱店舗 | 本社 | ||
取引形態:専任 情報掲載日:2025年12月22日 次回更新予定日:2026年01月05日
金沢市立四十万小学校(1031m)
金沢市立額中学校(1936m)
認定こども園ほのみこども園(1803m)- 石川県立野々市明倫高校(4753m)
- 野々市市役所(3515m)
- 金沢四十万郵便局(868m)
- 公立大学法人石川県立大学図書情報センター(3384m)
- 白山警察署鶴来庁舎(4816m)
- 四十万きずな広場(1570m)
- 洋和会池田病院(1002m)
- はくさん信用金庫野々市南支店(1721m)
- イオン野々市南店(2066m)
- ファミリーマート白山曽谷町店(926m)
- 大和香林坊店(8815m)
- ウエルシア金沢四十万店(642m)
- ケーズデンキ野々市新庄店(1450m)
- 公立大学法人石川県立大学大学院(2994m)
- TSUTAYA金沢野々市店(3008m)
- らあめん花月嵐四十万店(988m)
- アベイル野々市店(1410m)
類似物件一覧
類似物件は見つかりませんでした。
情報提供会社
